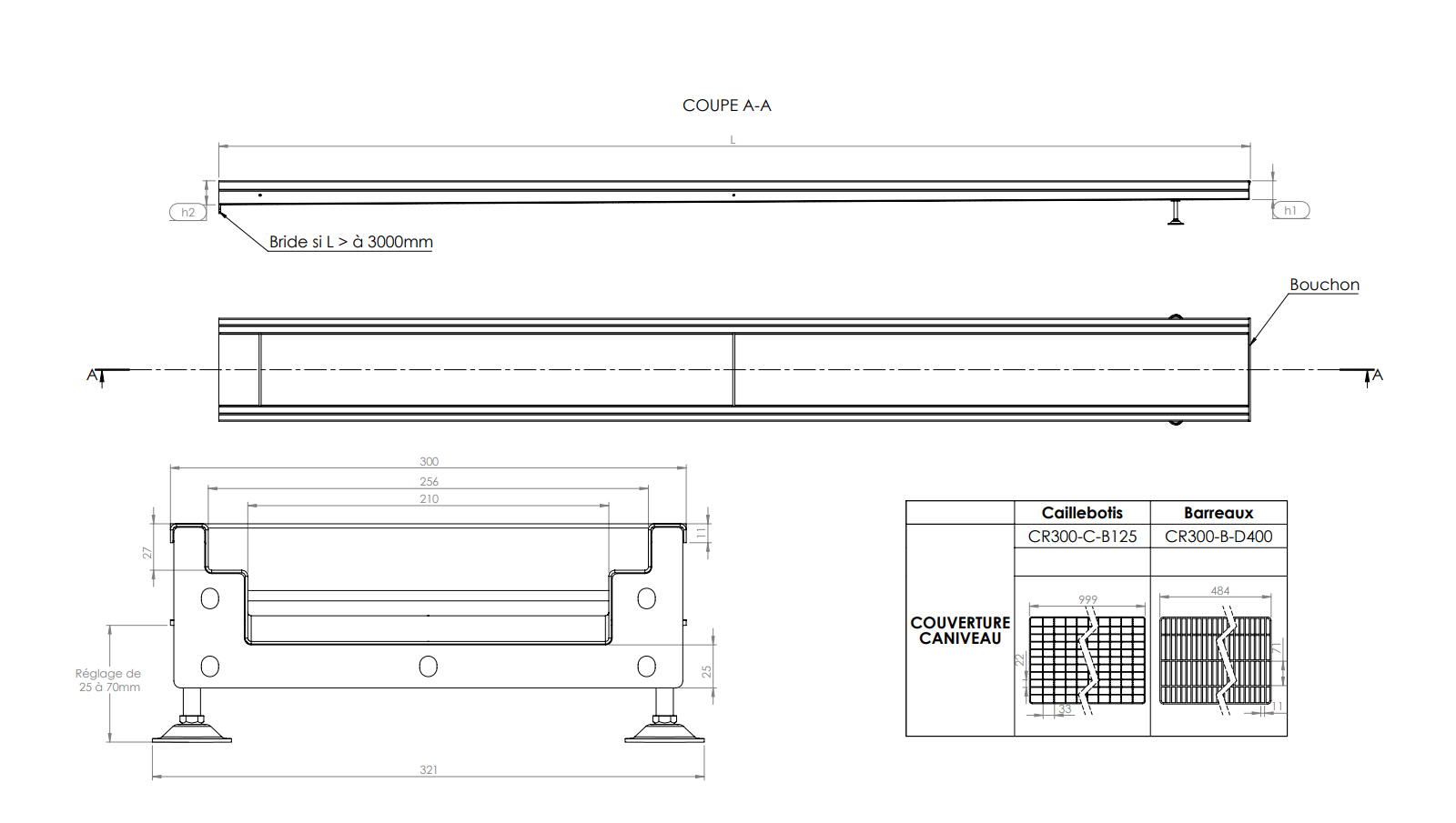
Caniveau Rhône® 300 Réf. RHONE 300

Description

  • Caniveau modulaire de sol
  • Hauteur de départ 55
  • Pente intégrée de 5mm/m
  • Liaison par deux brides si longueur > a 3000mm
  • Largeur de cuve 156mm
  • Différents choix de grilles possible

inox 304 (EN 1.4301) 100% recyclable

Devis

Quantité souhaitée
-
+

+ Produits

  • Conforme à la norme NF EN 1433

Options

  • Deux qualités d'inox disponibles sur demande
Schéma - RHONE 300 - Caniveau Rhône® 300