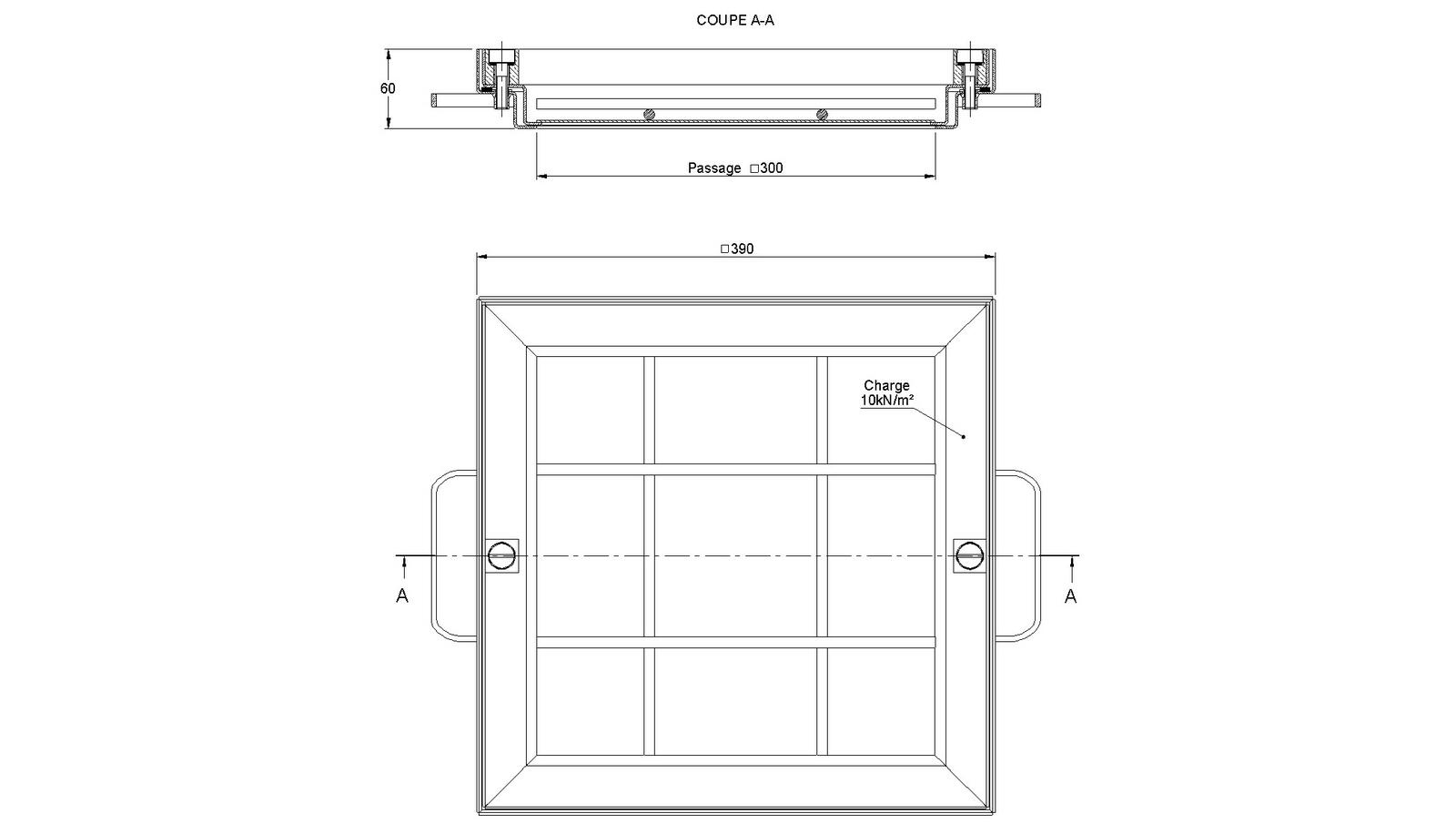
Tampon à remplissage de béton 390x390 mm Réf. TSL30
Description
- Cadre et tampon d'obturation étanche pour regard visitable
- Couvercle avec treillis pour armer le béton de remplissage
- garantissant la résistance mécanique de 10 kN/m²
- Muni de poignées de manutention et d'ancrage
- Joint périphérique en néoprène assurant l'étanchéité aux odeurs et aux infiltrations
- Poids 8,0 kg
Laiton
+ Produits
- Pour des sols prestigieux en granit, marbre, pierre ou carrelage
- Données techniques
Préconisations :
- Réservation : laisser 100 mm sur la périphérie du cadre. Notice de pose en téléchargement
- Tolérances générales suivant norme ISO 13920 classe D